干净利落的现代风格装修,开放式厨加超大卫生间,效果大气有品位!

面积不大的小户型空间,怎样装修设计看起来会更加大气呢?建面不到90平米的两房空间,采用现代风格为主的设计,加上高级灰的配色与原木色板材的使用,轻松营造出既简约时尚又特别大气的家居环境。本案的屋主是一位40多岁的单身男士,崇尚自由的生活方式,虽然是差不多90平米的房子,却只设置了一间卧室,带来格外舒适又无拘无束的家居生活。下面就和“未来家装网”一起来看看这套干净利落的现代风格装修案例!
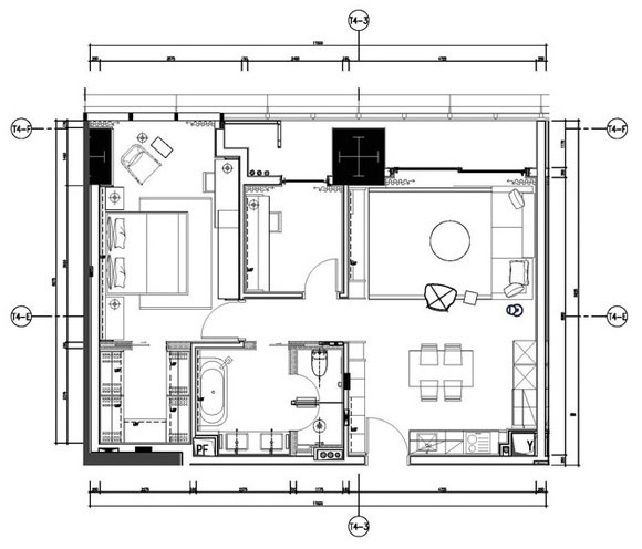
先来看看本案的户型图,非常方正的空间,没有丝毫空间的浪费。不仅有独立的衣帽间,还有大大的卫生间。采用开放式厨房设计,让客厅看起来更加宽敞。长长的阳台从客厅一直延伸到卧室,中间依然进行了隔断设计。卧室和阳台之间打通后,整间卧室的使用面积非常宽敞,大大提升了家居生活的舒适性。
客厅的面积虽然不是很大,但整体相对简洁的设计,也没有定制过多储物柜的空间,看起来依然十分宽敞。特别是原木色集成板材装饰的沙发背景墙,提升了客厅整体的装修档次。墙面挂上一幅黑色边框的装饰画来点缀,让客厅的整体装饰效果显得更有品味。现代风格的浅灰色布艺沙发,搭配一张造型优雅的椅子和一张轻奢风的圆形茶几,角落里再配上一盏造型简约时尚的落地灯,整个空间看起来干净利落又不失设计感和高级感。
由于是面积不大的小户型空间,没有独立的厨房和餐厅,所以将厨房和餐厅设置在客厅的一侧,中间没有任何隔断,保持空间视野开阔性的同时,也带来更加通透明亮的家居环境。一个人的单身生活,对厨房的要求不是很高。利用墙面定制了一组浅灰色橱柜,再配上必要的厨具和餐具,偶尔自己动手做上一顿美味的晚餐,还是可以满足要求的。
电视背景墙采用定制的电视柜来设计,相对于其他装修设计方式来说,这样的设计,费用不会很高,却也特别实用。黑色板材定制的电视柜造型简约,却也不乏大气和高级感。
通往卫生间、卧室、书房的过道,装修设计十分简洁,效果却依然非常不错。
书房的装修效果,利用墙面定制了一张挂墙式的深灰色小书桌,再配上一把舒适的椅子,完全可以满足在家工作的使用要求。平时一个人坐在这里回首一下往事,也是一件令人羡慕的事情吧。
卧室的装修设计不仅有着现代风格的时尚效果,还有着高级灰的高级感以及轻奢风的华丽效果,非常符合钻石王老五对单身生活的使用要求。
卫生间的面积非常宽敞,墙面和地面采用灰色纹理的瓷砖来装饰,配上白色的浴缸,马桶、浴室柜台面,整个空间色彩搭配简约却大气上档次。
崇尚单身生活的男性,家里装修时的设计可以不华丽,也可以不温馨感,但必须干净利落,彰显出自己与众不同的独特品位与审美。
本内容为作者独立观点,不代表“未来家装网”立场。如对本稿件文字及图片有异议,请联系在线客服!
“未来家装网”让装修更简单






